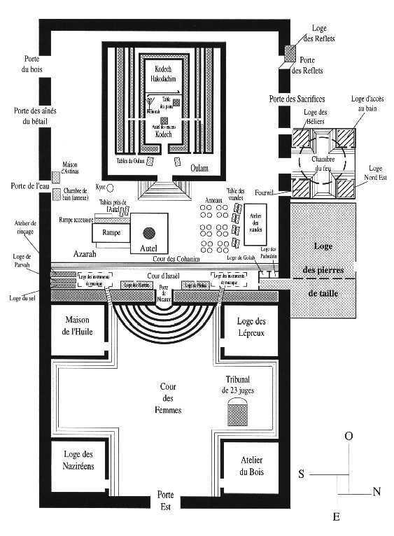
Plan du Temple de Jérusalem

 

 

Un dossier préparé par K. Acher
 
 


Zone des Anneaux